
The tour operator
(Interhome) is an
ABTA Member
ABTA No. L7890
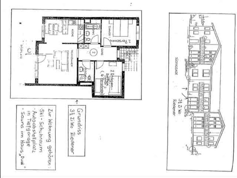
73 m2. More information by the provider: On the outskirts of Laax, in an idyllic and quiet location, is the 3.5 room apartment Casa Migiur. The bright first floor apartment offers 73m2 of space for 6 guests. It has a garden with a terrace and barbecue, a bedroom with a double bed and a bedroom with two bunk beds.In the family bathroom there is a bathtub with toilet and sink. In the small bathroom there is a separate shower with toilet and sink.The kitchen is equipped with a ceramic hob, oven, dishwasher and a refrigerator with freezer compartment, coffee filter machine, raclette, cheese and chinoise fondue set. A TV, radio as well as WLAN are available for free use.
Bed linen, final cleaning and one set of terry linen per person are included in the total price, as well as the visitor's tax.Dogs are allowed in this apartment on request and will be charged 10 CHF/night on site. Likewise, the use of the sauna at the end of the stay will be charged with 12 CHF/use on site.
More information by the provider: From the apartment to the center of the village is only 5 minutes walk, as well as to the bus stop "Demvitg". The free local bus takes you in only 5 minutes to the mountain railroads to Laax Murschetg or to Flims. In the house there is a ski room where skis, snowboards as well as boots can be dried and stored. Via the underground garage you can reach the adjoining house Casa Dual, where a sauna is available for common use. A reservation book outside the sauna regulates the use. On request we are happy to provide a travel cot for small children. Bus stop "Laax GR, Demvitg" 0.2 km, railway station "Valendas-Sagogn" 2.0 km, ferry "Mols (See)" 34.6 km.